-22% на водонагреватели из нержавеющей стали объемом 500 литров
Промышленный электрический водонагреватель 2500 литров предназначен для горячего водоснабжения жилых и промышленных объектов, больниц, учебных заведений и гостиничных комплексов. Нагрев воды в водонагревателях может производиться, как от встроенных блок - ТЭНов, так и от теплообменника косвенного нагрева.
Корпус емкости водонагревателя 2500 литров и нагревательные элементы изготовлены из нержавеющей стали и рассчитаны на длительный срок эксплуатации. При применении водонагревателя для нагрева воды для технологических нужд производства корпус может быть изготовлен из углеродистой стали. Снаружи емкость изолирована высококачественной теплоизоляцией, сверху защищена полимерной пленкой.
Водонагреватель вертикальный 2500 л. легко обеспечивает пиковые расходы системы горячего водоснабжения и может применяться совместно с другими источниками горячего водоснабжения в качестве основного или резервного. Теплообменник косвенного нагрева бойлера может быть выполнен, как в виде внешнего пластинчатого теплообменника, так и в виде встроенного змеевика из нержавеющей стали, теплоноситель в который подается от системы отопления здания.
Гарантия производителя 12 месяцев
Декларация соответствия Таможенного союза
| ХАРАКТЕРИСТИКИ | ПОКАЗАТЕЛИ | ЕДИНИЦЫ ИЗМЕРЕНИЯ |
|---|---|---|
| Артикул | АВП-НВ-2500 | |
| Ёмкость (±5%) | 2500 | литр |
| Материал бака | AISI 304 / S235JR (ст.3) | |
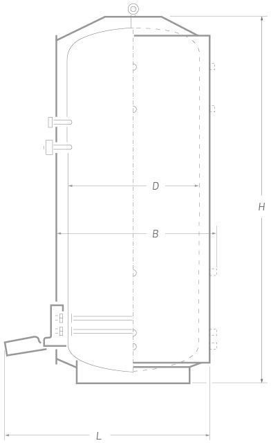
| Диаметр бака D | 1200 | мм |
| Внешний диаметр B | 1420 | мм |
| Высота H | 2570 | мм |
| Масса водонагревателя | 500 | кг |
| Объем в упаковке | 5 | м³ |
| Толщина теплоизоляции | 100 | мм |
| Допустимое давление | 0,6 | МПа |
| Рекомендуемая электрическая мощность встроенных ТЭНов (опция) | 35 | кВт |
| Время нагрева при рекомендуемой мощности от +5 до +65ºС ΔT=60ºC | 5 | час |
| Максимальная электрическая мощность встроенных ТЭНов | 150 | кВт |
| Пределы настройки термостата (±5) | от +30 до + 85 | ºС |
| Номинальное напряжение для блок ТЭНов (±10%) | 230 (400) | В |
| Рекомендуемая мощность внешнего/внутреннего теплообменника (опция) | 90 | кВт |
| Патрубки холодной / горячей воды. вн. резьба | 2 | дюймы |
| Сливной патрубок вн. резьба | 1 ¼ | дюймы |
| Патрубок под предохранительный клапан вн. резьба | 1 ¼ | дюймы |
| Гайка под гильзу терморегулятора / термоманометра вн. резьба | 1/2 | дюймы |
| Патрубок рециркуляции вн. резьба (опция) | 1 ¼ | дюймы |
| Количество гаек под блок-ТЭН G 1½" стандартная комплектация | 4 | шт. |
Промышленный электрический водонагреватель объёмом 2500 литров предназначен для горячего водоснабжения жилых и промышленных объектов, больниц, учебных заведений и гостиничных комплексов. Оборудование рассчитано на интенсивную эксплуатацию и может работать как от встроенных блок-ТЭНов, так и от теплообменника косвенного нагрева.
Корпус ёмкости и нагревательные элементы изготавливаются из нержавеющей стали и рассчитаны на длительный срок эксплуатации. При использовании водонагревателя для технологических нужд допускается исполнение бака из углеродистой стали. Снаружи ёмкость изолирована теплоизоляцией толщиной 100 мм и защищена полимерным покрытием.
Вертикальный накопительный водонагреватель обеспечивает стабильную работу системы горячего водоснабжения и покрывает пиковые расходы. Основные технические параметры:
Конструкция допускает подключение внешнего пластинчатого теплообменника или установку встроенного змеевика из нержавеющей стали для косвенного нагрева от системы отопления здания.
Промышленные водонагреватели «Невский» проектируются с учётом требований к надёжности и безопасности эксплуатации и оснащаются следующими решениями:
Звоните по телефону