-22% на водонагреватели из нержавеющей стали объемом 500 литров
Промышленный электрический водонагреватель 10000 литров предназначен для горячего водоснабжения жилых и промышленных объектов, больниц, учебных заведений и гостиничных комплексов. Нагрев воды в водонагревателях может производиться, как от встроенных блок - ТЭНов, так и от теплообменника косвенного нагрева.
Корпус емкости водонагревателя 10000 литров и нагревательные элементы изготовлены из нержавеющей стали и рассчитаны на длительный срок эксплуатации. При применении водонагревателя для нагрева воды для технологических нужд производства корпус может быть изготовлен из углеродистой стали. Снаружи емкость изолирована высококачественной теплоизоляцией, сверху защищена полимерной пленкой.
Водонагреватель вертикальный 10000 л. легко обеспечивает пиковые расходы системы горячего водоснабжения и может применяться совместно с другими источниками горячего водоснабжения в качестве основного или резервного. Теплообменник косвенного нагрева бойлера может быть выполнен, как в виде внешнего пластинчатого теплообменника, так и в виде встроенного змеевика из нержавеющей стали, теплоноситель в который подается от системы отопления здания.
Гарантия производителя 12 месяцев
Декларация соответствия Таможенного союза
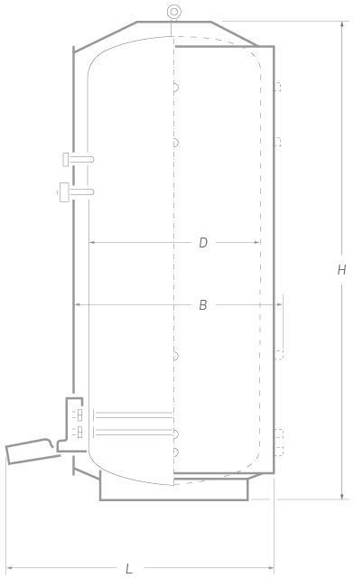
| ХАРАКТЕРИСТИКИ | ПОКАЗАТЕЛИ | ЕДИНИЦЫ ИЗМЕРЕНИЯ |
|---|---|---|
| Артикул | АВП-НВ-10000 | |
| Ёмкость (±5%) | 10000 | литр |
| Материал бака | AISI 304 / S235JR (ст.3) | |
| Диаметр бака D | 1900 | мм |
| Внешний диаметр B | 2260 | мм |
| Высота H | 3850 | мм |
| Масса водонагревателя | 2000 | кг |
| Объем в упаковке | 13 | м³ |
| Толщина теплоизоляции | 100 | мм |
| Допустимое давление | 0,6 | МПа |
| Рекомендуемая электрическая мощность встроенных ТЭНов (опция) | 75 | кВт |
| Время нагрева при рекомендуемой мощности от +5 до +65ºС ΔT=60ºC | 9,3 | час |
| Максимальная электрическая мощность встроенных ТЭНов | 300 | кВт |
| Пределы настройки термостата (±5) | от +30 до + 85 | ºС |
| Номинальное напряжение для блок ТЭНов (±10%) | 400 | В |
| Рекомендуемая мощность внешнего/внутреннего теплообменника (опция) | 450 | кВт |
| Патрубки холодной / горячей воды. вн. резьба | 2 | дюймы |
| Сливной патрубок вн. резьба | 1 ¼ | дюймы |
| Патрубок под предохранительный клапан вн. резьба | 1 ¼ | дюймы |
| Гайка под гильзу терморегулятора / термоманометра вн. резьба | 1/2 | дюймы |
| Патрубок рециркуляции вн. резьба (опция) | 1 ¼ | дюймы |
| Количество гаек под блок-ТЭН G 1½" стандартная комплектация | 6 | шт. |
Промышленный электрический водонагреватель объёмом 10000 литров рассчитан на эксплуатацию в системах горячего водоснабжения с очень высоким расходом воды. Такое оборудование применяется на крупных производственных объектах, в логистических центрах, больничных комплексах, спортивных сооружениях и других объектах с непрерывным водоразбором.
Ёмкость и нагревательные элементы выполняются из нержавеющей стали, что обеспечивает устойчивость к коррозии и длительный срок службы. Для технологических процессов возможно изготовление бака из углеродистой стали. Теплоизоляционный слой толщиной 100 мм снижает теплопотери и позволяет эффективно поддерживать заданную температуру воды даже при значительных объёмах.
Вертикальный накопительный водонагреватель на 10000 литров используется как основной источник горячей воды либо как часть резервной схемы теплоснабжения. Ключевые параметры оборудования:
Конструкция предусматривает подключение мощного внешнего теплообменника либо установку встроенного змеевика для косвенного нагрева от системы отопления. Это позволяет интегрировать оборудование в сложные инженерные схемы с несколькими источниками тепла.
При разработке водонагревателей «Невский» учитываются требования к надёжной и безопасной эксплуатации в крупных системах:
Звоните по телефону